Portfolio
Jumeirah,luxury villa

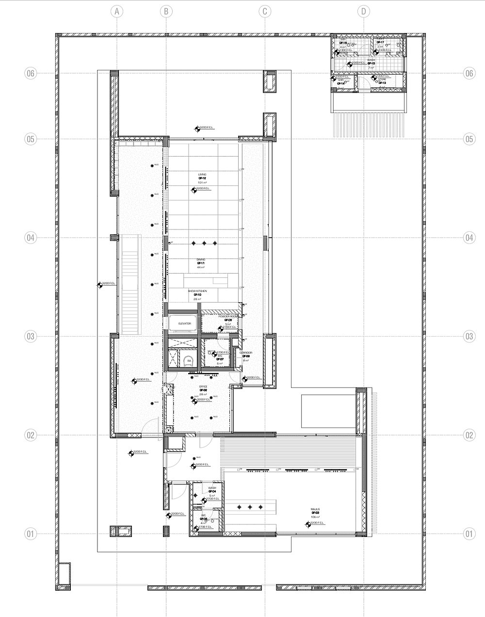
The Jumeirah Villa in Dubai is one of NAFA’s distinctive projects. Despite its scale and complexity, NAFA successfully joined the project midway to take over the complete interior design and landscaping. This achievement was made possible through close collaboration with three partner companies from Germany, Oman, and Iraq, each contributing expertise in architecture, consultancy, and construction.
The villa, spanning 1,700 square meters across three levels (B+G+1), has been completed as one of the most beautiful and luxurious residences in the area, standing as a true showcase of refined design and execution